A first look at plans to create a new £100m neighbourhood in Lancaster's Canal Quarter area has been revealed.
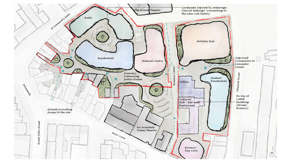
The developers' masterplan for regenerating the three-acre Brewery Lane site includes a hotel, housing including 60 residential units and 150 student homes, a state-of-the-art medical centre, a car parking hub, children's nursery and restoring the former brewery to create a 600-capacity entertainment venue with office space for businesses.
Russ Worthington from Lancaster, speaking on behalf of the developers, said it was a "once in a generation opportunity for Lancaster".
LISTEN to Russ Worthington and Nick Mullins from developers Axis-RE talking about the plans
A new concept plan for the former Mitchell's Brewery site, bordered by Moor Lane and St Leonardgate and lying between the city's shopping centre and canal path, has been released this week.
See below.

Deveopers Axis-RE and Marco Living said the key features include:
• Significant public open space to encourage dwell time and support the area’s cultural and leisure venues
• Re-opening of ginnels to enhance connectivity between the city centre and canal
• A new 125-key hotel to strengthen Lancaster’s tourism and business visitor economy
• A state-of-the-art medical centre aligned with the NHS 10-Year Plan and Neighbourhood Health initiatives
• A new mobility hub providing around 260 parking spaces, bicycle storage, delivery collection services, and small-scale retail - enabling Lancaster City Council to redevelop adjacent land for housing
• A 6,500 sq. ft day nursery to support working parents and meet growing city-centre demand
• Around 150 affordable purpose-built student beds, improving access to university accommodation
• Approximately 60 mixed-tenure residential units
• Sensitive restoration of the listed brewery to create a multi-purpose entertainment venue for up to 600 people and flexible office space for local businesses and start-ups
There has been talk of regenerating the Canal Quarter for decades but plans have never come to fruition.
Over the past few months, since the developers acquired the site, planning applications have gone in to demolish buildings to make way for the development.
They are also seeking planning permission for a 158-space temporary public car park on the site, for two years, which the developers said will help "the site remain productive whilst the comprehensive masterplan is being prepared".
“Since acquiring the site in May, we’ve been fully focused on maintaining momentum on what we see as a once-in-a-generation opportunity for Lancaster," said Mr Worthington (below), director and co-founder of North West property development firm Axis-RE.

"As a local resident, this project means a great deal personally.
"These designs reflect a genuine wish to enhance what already works while introducing what’s been missing, creating new facilities, spaces and reasons for people to visit and stay.
"Our goal is to deliver a scheme that complements Lancaster’s existing offer while supporting the local economy, attracting visitors, and improving
daily life for those who call the city home.”
The developers said: "Over the past six months, the team has been in continual discussion with key local stakeholders to bring together a balanced, community-led vision for the site.
"Designs have been carefully coordinated with neighbouring landowners to ensure each can progress their own developments without compromise.
"The result is a masterplan that supports Lancaster’s ambition for a connected, sustainable Canal Quarter, delivering spaces that encourage people to live, work, and spend time in the city centre."
Below, an overhead view of the Brewery Lane site (in red)

The developers said that "further engagement will continue with the community and local authorities in the months ahead as plans evolve toward delivery".
They said that "early conversations with local MPs, City Council leaders, and the relevant local authority departments have been encouraging, with shared enthusiasm to revitalise this key part of Lancaster city centre."
In June, the developers announced they had bought the derelict brewery site.
Marco Living and Axis-RE said they wanted to deliver a £100m "vibrant, commercial-led mixed-use" scheme on the land, and said they had acquired Lanmara Developments Ltd, the land owners.
They later said they wanted to "take essential safety measures at the Brewery Lane land, beginning with the removal of structurally dangerous buildings".
Planning applications then went in to demolish buildings on the site, including the Kanteena music and arts venue.

There was a public backlash to plans to knock down Kanteena, although its management had already announced they would be closing at the end of 2025, saying "when we began building Kanteena at Brewery Lane six years ago, we always knew it was meant to be temporary".
Since then, it's been announced that Kanteena will remain open well into 2026, and there will now be plans for a permanent entertainment venue as part of the new development. The developers said this decision was made after listening to feedback from supporters of Kanteena.
*Lancaster City Council planning and regulatory committee will have the final say on granting planning permission for the demolition work and the temporary car park.
They will meet to discuss the applications at Morecambe Town Hall on Monday November 24 at 10.30am. This meeting is open to the public.
Read more on all the background to this story:
Lancaster music venue due to shut will now stay open "well into 2026" - Beyond Radio
Plans go in for new 158-space car park on Canal Quarter site in Lancaster - Beyond Radio
Kanteena team "exploring all options" as they hope to continue in Lancaster - Beyond Radio
Music fans rally against plans to demolish popular Lancaster venue - Beyond Radio
'Final Chapter' for groundbreaking Lancaster music venue - Beyond Radio
Demolition work announced for £100m brewery site revamp in Lancaster - Beyond Radio
Developers plan £100m revamp of old brewery site in Lancaster - Beyond Radio
Lancaster Canal Quarter revamp is officially backed by council - Beyond Radio
*In October, seperate plans to build 39 new houses on the Nelson Street car park in Lancaster city centre by South Lakes Housing, as part of the wider Canal Quarter development, were approved by Lancaster City Council.
Read more: New housing on Lancaster city centre car park gets thumbs up - Beyond Radio


Children's play area in Lancaster opens after £118k revamp
Illegal tobacco and counterfeit clothing seized during raid on Lancaster city centre shop
Lancaster bowling green fundraiser hits target
Six food businesses in Lancaster district fail allergen tests
LISTEN: Stars of Morecambe and Wise stage show can't wait for Eric's 100th birthday
LISTEN: Thousands enjoy Wray Fair finale to annual scarecrow festival
PHOTOS and VIDEO: Incredible sand art on Morecambe beach honours Sir David Attenborough
Row over Morecambe FC debt as ex-directors' firm issues winding-up petition against club
Morecambe Pride handed £3,500 grant boost
North West awards delight for talented stars of Lancaster musicals
Music festival set for Lancaster over Bank Holiday postponed due to ‘ongoing planning’
Lancashire Police Museum in Lancaster celebrates fourth anniversary
Police investigate alleged sexual exploitation at Lancaster flat
Beyond the Beat: Two arrests after assault in Lancaster city centre
Morecambe MP "appalled" as Lancashire set to quit refugee resettlement scheme
Replica RAF helicopter to go on display in Lancaster at three-day show
Life-size knitted mannequin pops up ahead of Eric Morecambe's 100th birthday
Stars play in celebrity football match in Morecambe in memory of brave teenager
Roses are red! Lancaster University students celebrate fifth straight victory
70 homes in Carnforth evacuated after bomb scare

